︎
Projets architecturaux
fonctionnels, durables et créatifs
Projets
Habitat •
Extérieur •
ERP
•
Mobilier •
Expériences
Contact
Publications
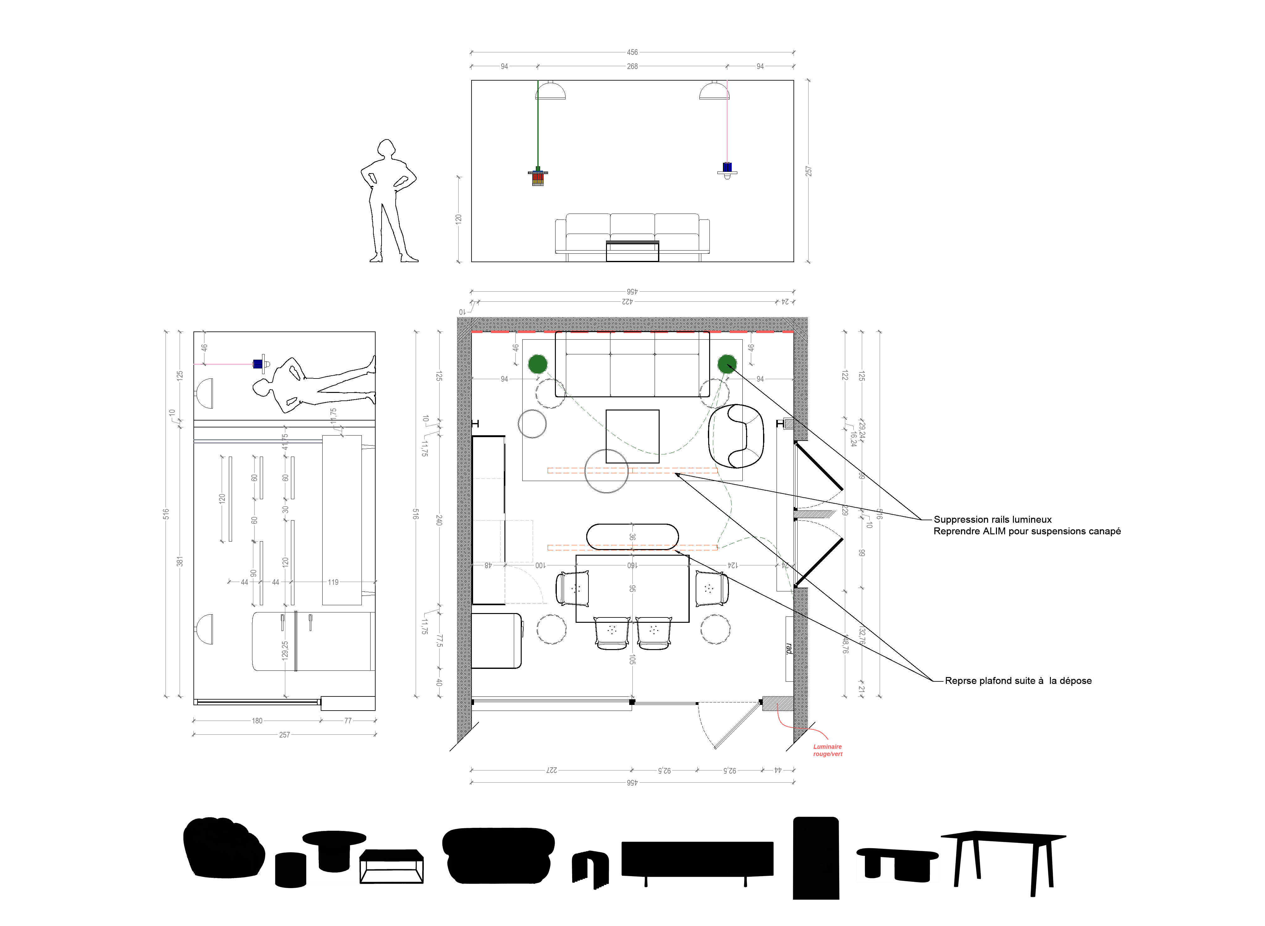
Rénovation d’un logement, Paris 1
St Roch, 24 m²
Installation d’un restaurant, Paris 9
Fondus, 240 m²
Transformation d’un logement et ses combles,
Paris 13
Berges, 94 m²
Design d’un mobilier, Lyon 69
mob i4
Réhabilitation / extension maison, Noirmoutier 85
Maison de famille, 88 m²
Terrasse sur pilotis, Bretagne 22
Nouvel horizon
Un bar dans un placard, Paris 19
PLACBAR
Rénovation d’un logement, Paris 13
Chapitre 3
Salle de pause et de travail de l’entreprise The Drop, Clichy 92
Antichambre du laboratoire
Réhabilitation d’un logement, Paris 2
Stroboscope, 42 m²
2025 / studiobravo
Diplômés d’Etat en Architecture
contact@studiobravo.archi
︎
︎