︎
Projets architecturaux
fonctionnels, durables et créatifs
Projets
Habitat •
Extérieur •
ERP
•
Mobilier •
Expériences
Contact
Publications
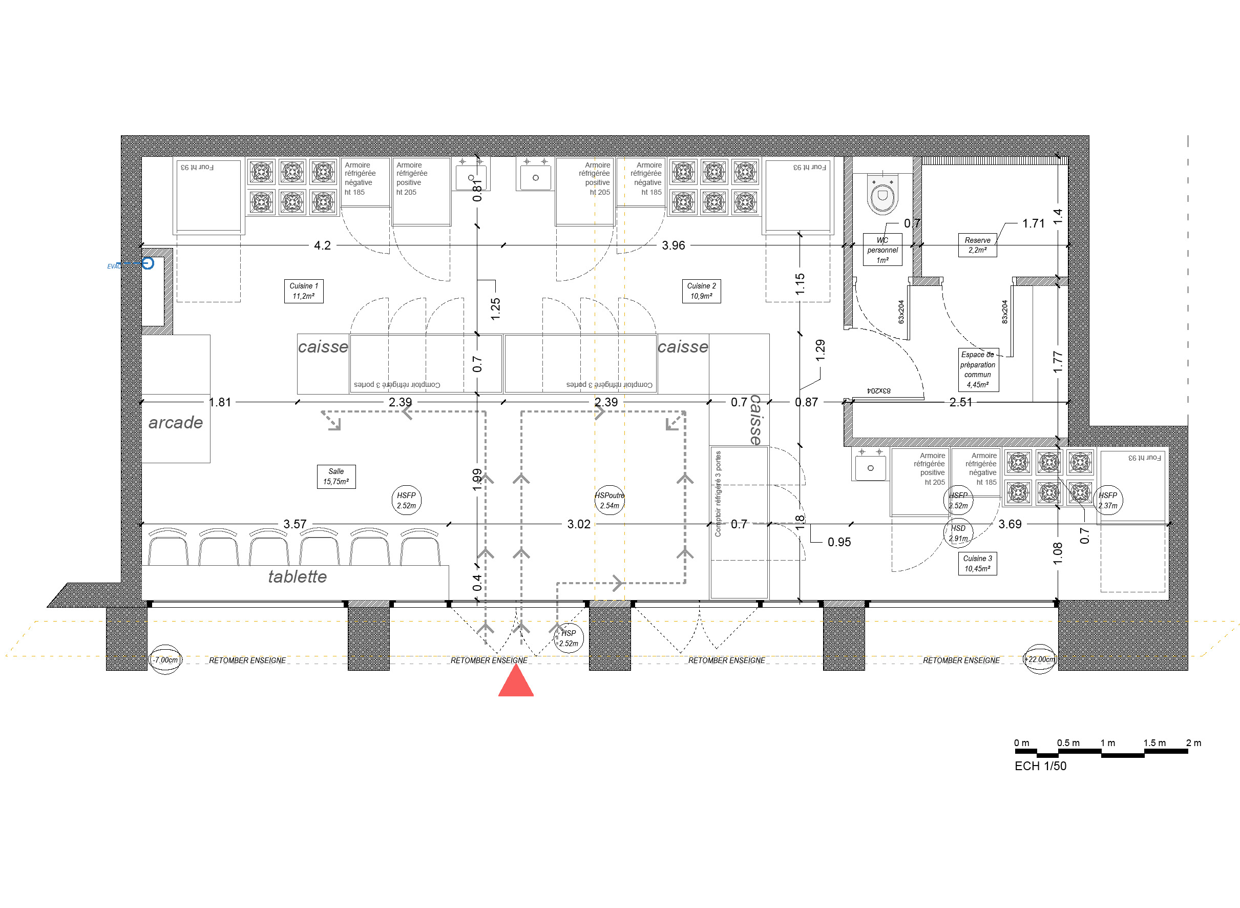
Espace de restauration
Lieu
: Essonne
Date
: 2023
Mission
: concevoir un espace de restauration à emporter, ERP catégorie 5, dépot administratif
2025 / studiobravo
Diplômés d’Etat en Architecture
contact@studiobravo.archi
︎
︎