︎
Projets architecturaux
fonctionnels, durables et créatifs
Projets
Habitat •
Extérieur •
ERP
•
Mobilier •
Expériences
Contact
Publications
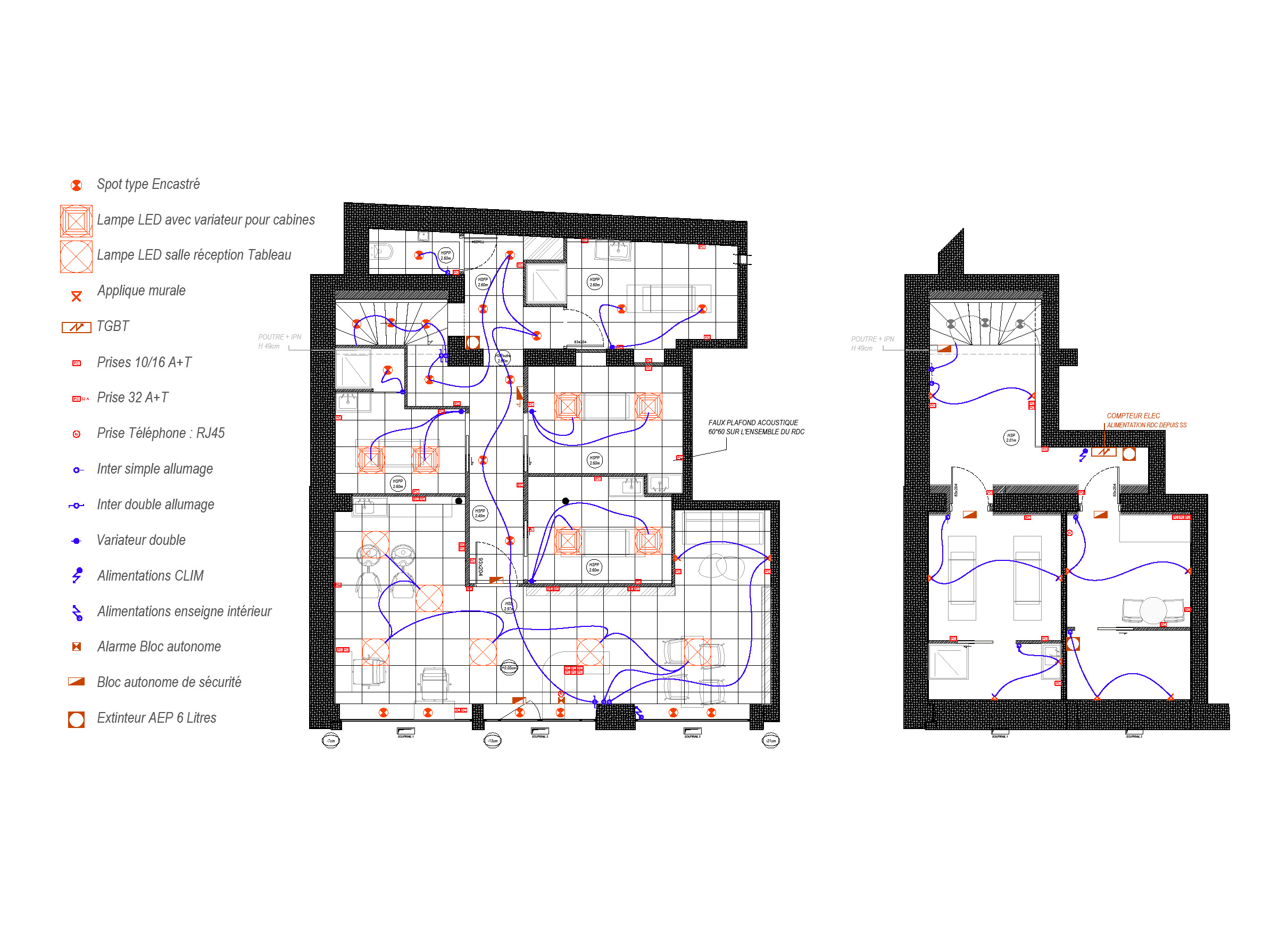
Aménager un institut de beauté
ERP cat. 5
Lieu
: Paris
Date
: 2022, 2023
Mission
: relevé des locaux commerciaux, études de faisabilité, DCE, métrés pour faciliter les entreprises à chiffrer, prise en compte des normes ERP
2025 / studiobravo
Diplômés d’Etat en Architecture
contact@studiobravo.archi
︎
︎