︎
Projets architecturaux
fonctionnels, durables et créatifs
Projets
Habitat •
Extérieur •
ERP
•
Mobilier •
Expériences
Contact
Publications
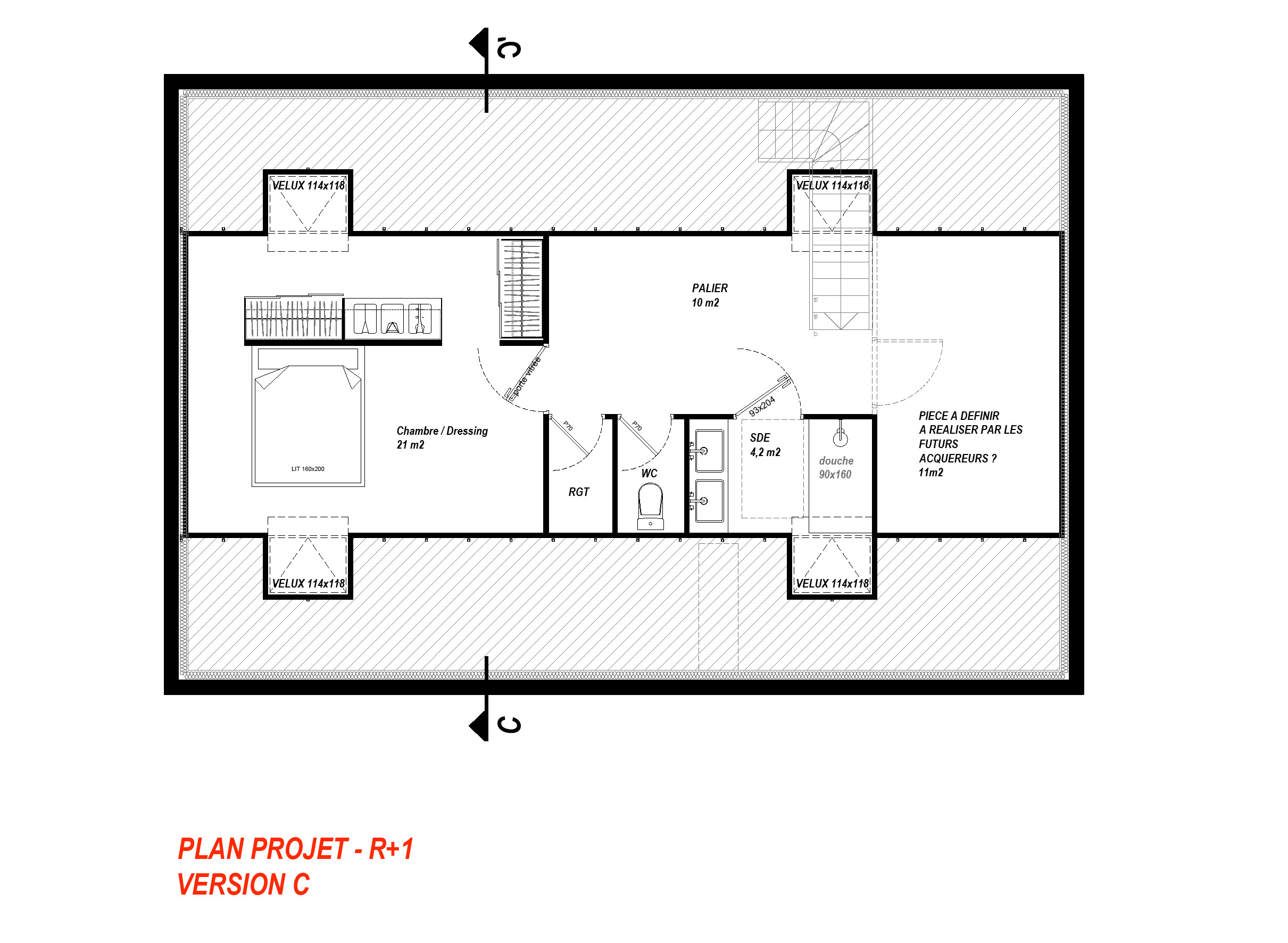
AUROS, aménagement de combles
Angers 49220, 50 m²
Commanditaire
: client particulier
Lieu :
Maine-et-Loire 49
Date :
2023
Mission :
Etude de faisabilité, dépôt de la DP
2025 / studiobravo
Diplômés d’Etat en Architecture
contact@studiobravo.archi
︎
︎